Garantii: 5 aastat
Tarneviiside kohta loe siit
Baasmudeli tarnekomplekt sisaldab
- Sügavimmutatud alusraam
- Põrand – punni- ja soonega laudadest
- Seinadetailid – kahesooneline freespruss
- Avatäited – uksed ja aknad koos furnituuri ja piirdeliistudega
- Katus – punni- ja soonega laudadest
- Räästa- ja tuulekastilauad
- Tormikinnitusliistud
- Montaazivahendid
- Projekt
- Paigaldusjuhend
Toote omadused ja eelised
- Pakettklaas
- Kald- ja pöördavanev aken
- Madal metallkattega lävepakk
- Ei sisalda katusekatet
- Ei vaja ehitamiseks luba
- Paigaldatav peegelpildis
Pakend
6300 x 1180 x 790 - 1440 kg
Maja detailid on pakitud alusele ja kaetud ilmastikukindla termokahaneva kilega.
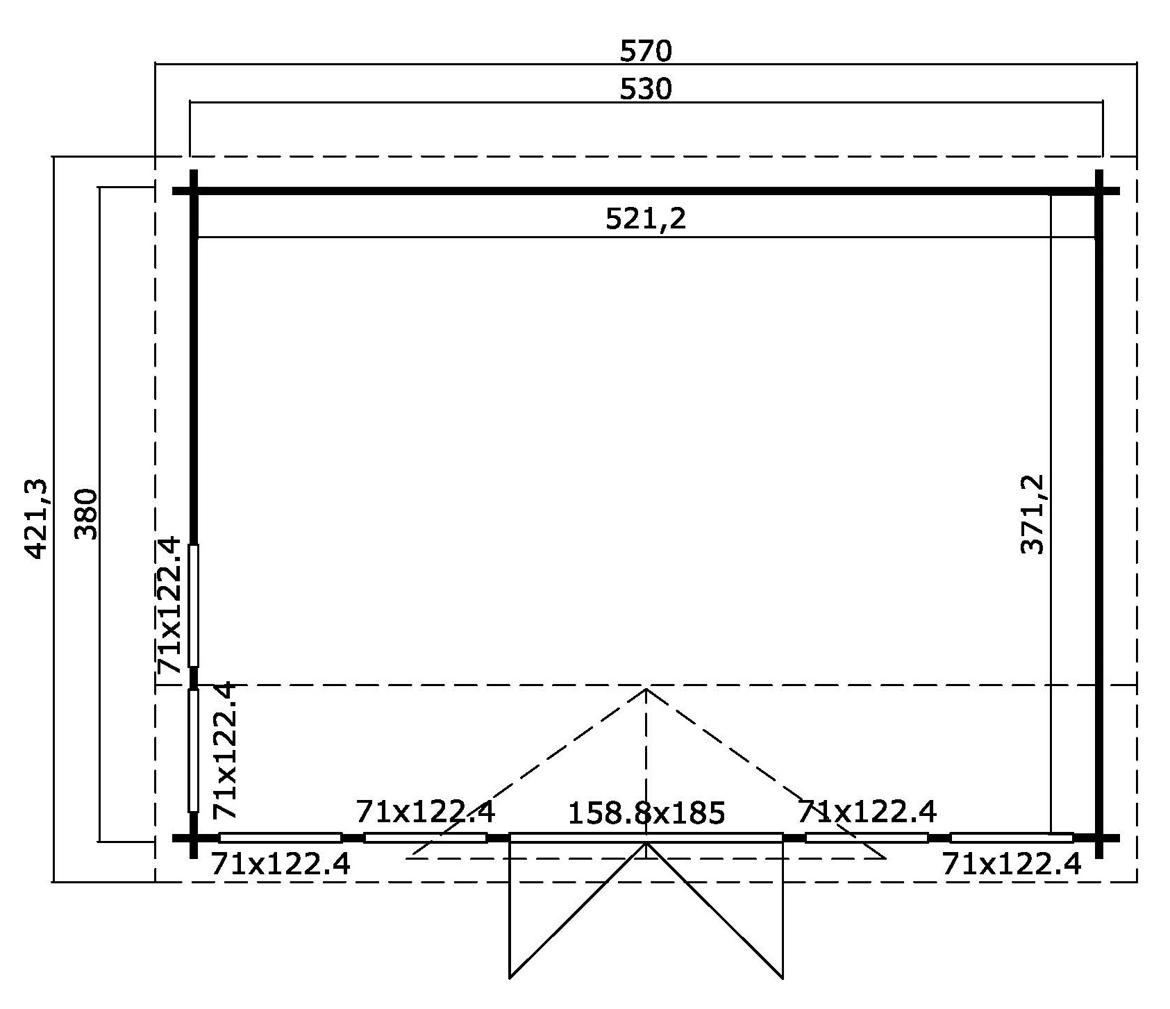
Põrandapind 19.40 m²Ehitisealune pind: 20.10 m²Katuse pindala: 25.81 m²Katuse kalle: 7,9 / 17,9 / 12,8Seina paksus 44 mmAlusraam: 70 x 45 mmPõrandalaua paksus: 18,5 mmKatuselaua paksus: 18,5 mmVundament 530 x 380 cmLaius koos räästa üleulatuvusega: 570 cmSügavus koos räästa üleulatuvusega: 421 cmSeina kõrgus: 200 cmHarja kõrgus: 239 cmKatuse üleulatuvus eest: 18 cmKatuse üleulatuvus külgedelt: 23 cmKatuse üleulatuvus tagant: 20 cmUkse tüüp GoldUkse mõõdud: 1588 x 1850 mmUkse klaasi paksus: 4/6/4 mmUkse klaasi tüüp: PakettklaasAkna tüüp GoldAkna mõõdud: 710 x 1224 mmAkna klaasi paksus: 4/6/4 mmAkna klaasi tüüp: PakettklaasPaigaldatav peegelpildis: JahViimistlus: ViimistlemataVärvitoon: NaturaalneKonstruktiivne materjal: FeesprussNurga tüüp: Tapitud nurkMaterjal: Põhjamaine kuuskLumekoormus: 24 kg/m²