Garantii: 2 aastat
Tarneviiside kohta loe siit
Baasmudeli tarnekomplekt sisaldab
- Seinadetailid – ühesooneline freespruss
- Avatäited – uksed ja aknad koos furnituuri ja piirdeliistudega
- Katus – punni- ja soonega laudadest
- Räästa- ja tuulekastilauad
- Tormikinnitusliistud
- Montaazivahendid
- Projekt
- Paigaldusjuhend
Toote omadused ja eelised
- Ei sisalda põrandat
- Madal metallkattega lävepakk
- Ei vaja ehitamiseks luba
- Paigaldatav peegelpildis
- Kald- ja pöördavanev aken
Pakend
6300 x 1180 x 470 - 952 kg
Maja detailid on pakitud alusele ja kaetud ilmastikukindla termokahaneva kilega.
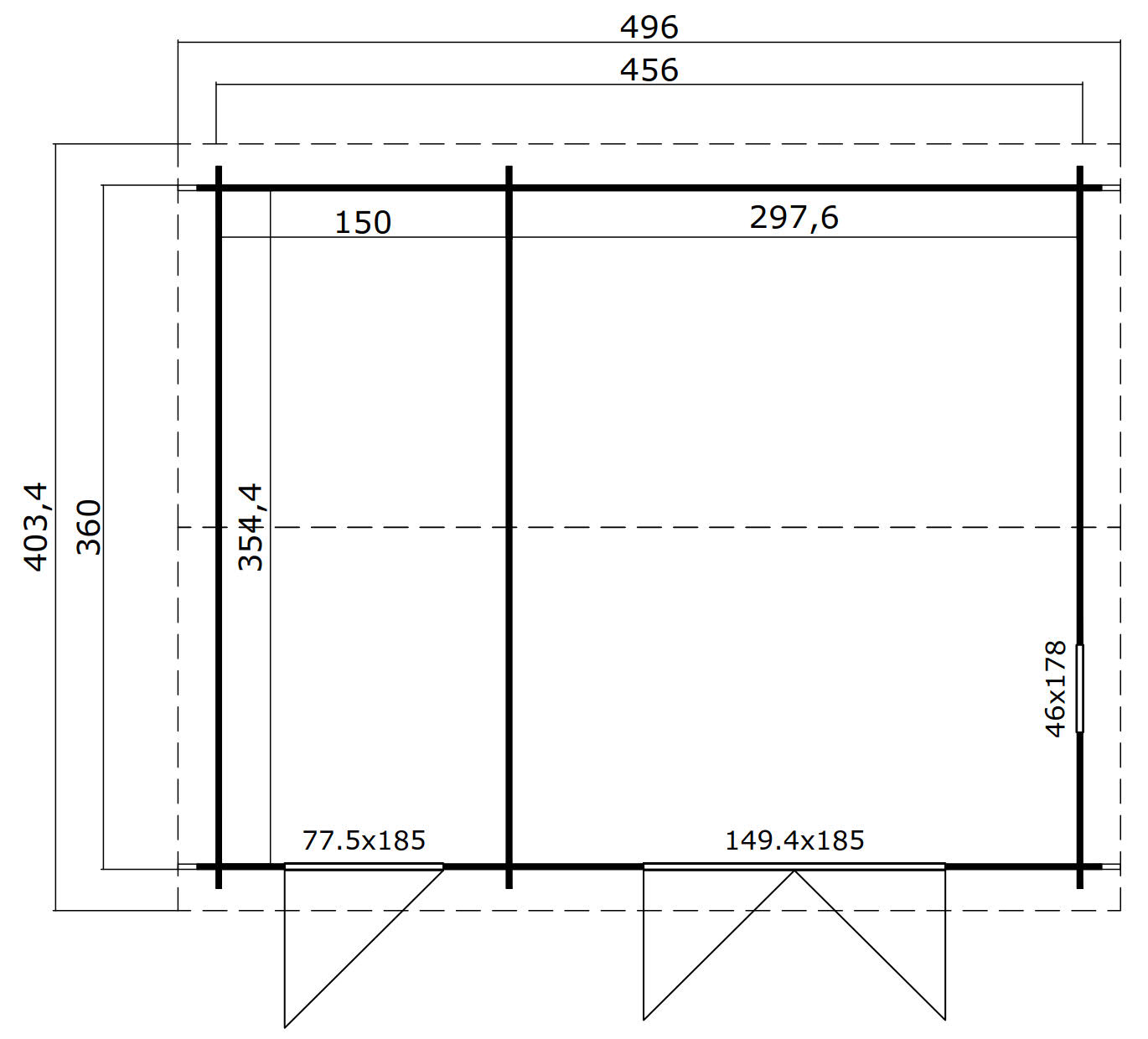
Põrandapind 15.87 m²Ehitisealune pind: 16.42 m²Katuse pindala: 20.83 m²Katuse kalle: 16.2Seina paksus 28 mmAlusraam: -Põrandalaua paksus: -Katuselaua paksus: 15,5 mmVundament 456 x 360 cmLaius koos räästa üleulatuvusega: 496 cmSügavus koos räästa üleulatuvusega: 403 cmSeina kõrgus: 200 cmHarja kõrgus: 251 cmKatuse üleulatuvus eest: 20 cmKatuse üleulatuvus külgedelt: 20 cmKatuse üleulatuvus tagant: 22 cmUkse tüüp BronzeUkse mõõdud: 1494 x 1850 mm
775 x 1850 mmUkse klaasi paksus: 4Ukse klaasi tüüp: Ühekordne klaasAkna tüüp BronzeAkna mõõdud: 460 x 1780 mmAkna klaasi paksus: 4Akna klaasi tüüp: Ühekordne klaasPaigaldatav peegelpildis: JahViimistlus: ViimistlemataVärvitoon: NaturaalneKonstruktiivne materjal: FeesprussNurga tüüp: Tapitud nurkMaterjal: Põhjamaine kuuskLumekoormus: 112 kg/m²