Garantii: 2 aastat
Tarneviiside kohta loe siit
Baasmudeli tarnekomplekt sisaldab
- Seinadetailid – ühesooneline freespruss
- Avatäited – uksed ja aknad koos furnituuri ja piirdeliistudega
- Katus – punni- ja soonega laudadest
- Räästa- ja tuulekastilauad
- Tormikinnitusliistud
- Montaazivahendid
- Projekt
- Paigaldusjuhend
Toote omadused ja eelised
- Ei sisalda põrandat
- Madal metallkattega lävepakk
- Ei vaja ehitamiseks luba
- Paigaldatav peegelpildis
- Kald- ja pöördavanev aken
Pakend
6300 x 1180 x 470 - 852 kg
Maja detailid on pakitud alusele ja kaetud ilmastikukindla termokahaneva kilega.
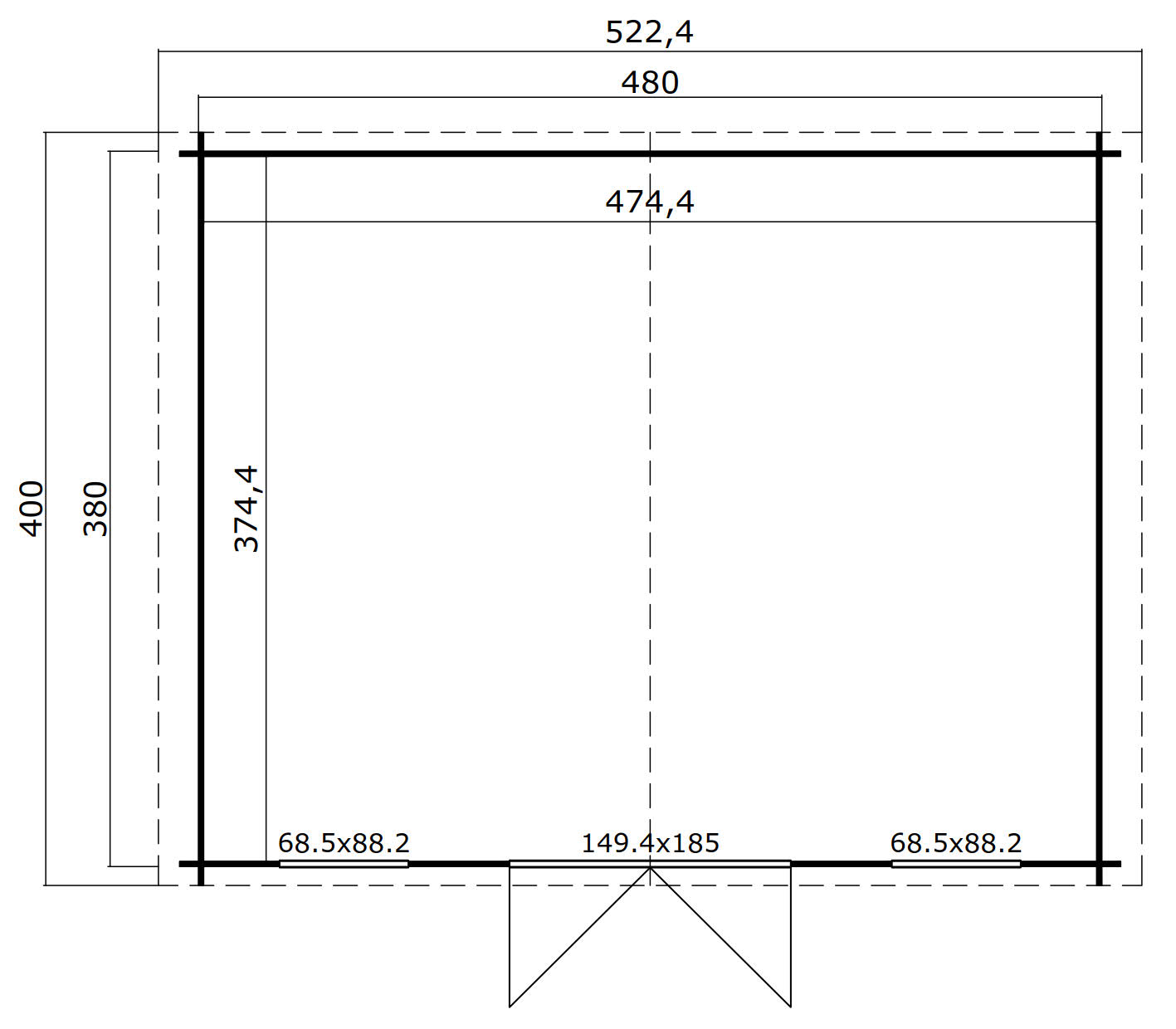
Põrandapind 17.76 m²Ehitisealune pind: 18.24 m²Katuse pindala: 21.60 m²Katuse kalle: 14.7Seina paksus 28 mmAlusraam: -Põrandalaua paksus: -Katuselaua paksus: 15,5 mmVundament 480 x 380 cmLaius koos räästa üleulatuvusega: 522 cmSügavus koos räästa üleulatuvusega: 400 cmSeina kõrgus: 194 cmHarja kõrgus: 257 cmKatuse üleulatuvus eest: 10 cmKatuse üleulatuvus külgedelt: 21 cmKatuse üleulatuvus tagant: 10 cmUkse tüüp BronzeUkse mõõdud: 1494 x 1850 mmUkse klaasi paksus: 4Ukse klaasi tüüp: Ühekordne klaasAkna tüüp BronzeAkna mõõdud: 685 x 882 mmAkna klaasi paksus: 4Akna klaasi tüüp: Ühekordne klaasPaigaldatav peegelpildis: JahViimistlus: ViimistlemataVärvitoon: NaturaalneKonstruktiivne materjal: FeesprussNurga tüüp: Tapitud nurkMaterjal: Põhjamaine kuuskLumekoormus: 88 kg/m²